东江欣居86m² 现代简约风格
2020-06-28 11:39:09 查看人数 890
案例面积:86㎡
案例户型:三居室
装修造价:约17.2万
案例风格:现代
本套方案设计师采用现代简约的装修风格,客厅电视背景墙采用整面的白色大理石集配少许黑钛铁艺和原木色调木饰面,即让造型整体融汇贯通,也使得空间的整体性更加突出储物空间更多。选材颜色素雅大方,设计师将优雅的气质很好的融入现代风格中。
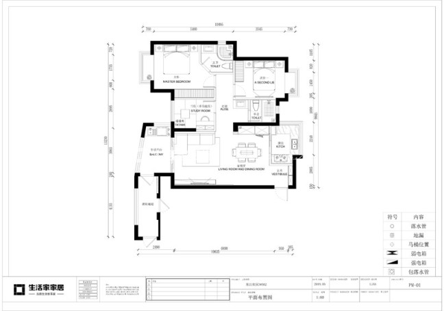
户型图
本案户型原结构是两房的设计,虽然面积只有86㎡,但空间利用率很高。该户型南北通透,通风采光都极佳。在结合业主需求下,巧妙的把空间一分为二,变为两房半的格局,多分出来一间多功能房,满足了业主的需求,也节约了空间。最后出来的整体空间效果很清爽通透,空间动静线也变得更为人性化和合理化。
客厅
电视背景墙采用大面积的白色水墨纹大理石和木饰面的拼接搭配以少量的黑钛铁艺元素是整个客厅的设计亮点,背后沙发背景墙则是用简单的黑钛线条制作造型。沙发采用高级灰颜色的布艺L型沙发,使客厅更显得简洁、大气。
餐厅
入户的色漆伸到餐厅过道,和餐柜的白色烤漆面形成鲜明对比。让空间显得更为柔和,充满现代风格韵味和简洁。纯木材质的原木色餐桌,配以同色系的木质加布艺凳子使得空间更有质感。
