三盛滨江国际101m² 现代简约风格
2020-06-28 11:33:34 查看人数 634
案例面积:101㎡
案例户型:三居室
装修造价:约20万
案例风格:现代
方案设计风格为现代风格,整体空间白色与木色主色。阴阳协调,留白布局,颜色的沉稳,让人眼前一亮,提高整体的休憩质量。
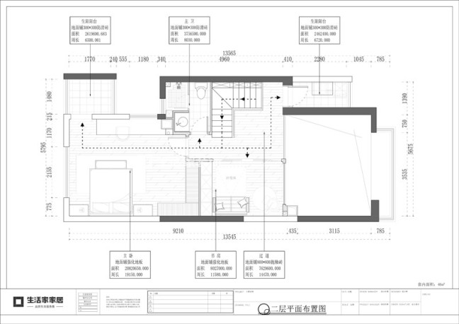
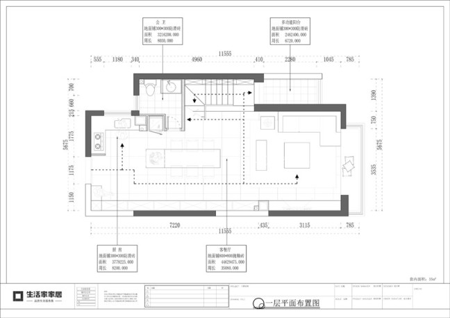
户型图
两室两厅户型方正且紧凑,无较多浪费的空间、功能分布位置合理,入户一进门就是厨房与餐厅,开发厨房的设计与大板桌的结合让人眼前一亮,入户一眼看的是对面的大落地窗,客厅顶上是挑空的设计,彰显整体的格局大气端庄。二楼是一个卧室与一个书房与一个生活阳台,有一个朝南的卧室舒适度极佳。楼梯一上来就是书房,一个超大的落地推拉门。干净又整洁大方。
客厅
客厅运用白色为主调,沙发的背景墙是业主的喜爱的中国地图,表示他去过的城市,让人一下子有了精神烘托。在客厅挑空的设计中,让整体的客厅空间更加大。无障碍通行,悠然自得。
餐厅
餐厅与厨房相隔较近,拥有更舒适的就餐环境。临近客厅,通行方便,增加业主的生活质量。
