名城紫金轩104m² 现代简约风格
2020-06-28 11:48:06 查看人数 995
案例面积:104㎡
案例户型:三居室
装修造价:约23.5万
案例风格:现代
黑色和白色是两种极致的色彩,任何一种明亮的色彩当中加入黑色,都会使亮度降低,达到一种特殊的效果。在室内设计中,黑色的这种特性会让一些色彩过于亮的区域进行一种中和,让其达到人们想要的效果。在家具和材料的选择上都以极简为理念,但同时又没有减少整体的舒适和居住感。
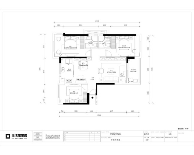
户型图
本案户型原结构是一个大平层套房,套内面积104㎡,户型较为方正,分区明显。本户型流线较为简单、实用。餐厅、客厅、过道空间形成独立却又完整的空间,空间功能分布合理。主卧、客厅、儿童房的采光比较好,客厅有个大阳台,相当惬意。
客厅
或白或灰的色调,让客厅显得既沉稳而又不失时尚。灰白色的墙面、灰色的家具和沙发,让客厅看上去格外简洁开阔。无须华丽的装饰,无须贵重的家具,简单的颜色搭配带来的明媚感讲珍整个客厅的拘谨一扫而空。本案的电视背景墙的设计是整个住宅空间的一大亮点。
餐厅
本案餐厅的设计亮点便是餐桌边上的酒柜以及吊顶。与客厅的设计合二为一,相互呼应。还运用了两幅现代挂画,更符合现代人的审美品位。
