中庚香开新城102m² 现代简约风格
2020-06-23 13:11:14 查看人数 648
案例面积:102㎡
案例户型:三居室
装修造价:约20万
案例风格:现代
在仅限的空间里合理规划空间进行利用,现代简约的风格,简约而不简单,整体舒适居家,在造型艺术空间色感上都处理的恰到好处,在细节上的过度也是完美诠释和谐空间环境,完美的曲线,精益求精的细节处理,给家人带来不尽的舒适触感。
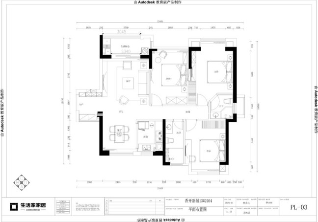
户型图
套内是标准的三房一厅,两卫,一厨,生活阳台。入户即是连接餐厅,每个功能空间区分清晰方正,在热闹的背后便是安静的卧室空间。
客厅
入户进门,左手边即为客厅。客厅以疏朗宽阔作序,简化繁琐装饰,释放空间压力。明媚风光破窗而入,追随居者生活的轨迹,描绘出这一屋清雅,一室酣畅,有种味道,叫做家,
卧室
六月的阳光穿透斑驳的绿叶,在酷炫的黑骑士耳侧低语,感谢他的尽职尽责,守护了空间的纯粹与一家人的幸福。
餐厅
餐厅位于玄关另一侧,格局流畅且结构独立,餐桌与餐椅等多元化材质搭配带来的层次感,清爽利落的线条塑造的宁静感,让一家人在摇曳的烛光下,在弥漫的香气中,品尝精巧餐具中用心料理的幸福味道。
