世茂上游墅120m² 复式后现代风格
2020-06-23 12:00:33 查看人数 678
案例面积:120㎡
案例户型:三居室
装修造价:约30万
案例风格:现代
后现代风格受传统文化和怀旧思潮的影响,又追求现代化潮流,将传统的典雅和现代的新颖充分融合,既延续了历史,又追求的个性、新颖性。
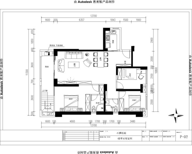
户型图
为满足会客功能的需求,采用了餐厅客厅一体化的设计在摒弃了不必要的隔断,增加空间的开阔性,这是一种沁人心脾的舒适享受。 超大厨房是每位家庭主妇的梦想,考虑父母烹饪的便利性。将原有的厨房空间进行拓展,增加更多操作空间,自如转身,再多厨具也可自如摆放。
客厅
光线温暖充分,金属吊灯及充满质感的棕色皮质沙发结合跳色单椅凸显灵动自由空间,再以黑色配饰点缀,处处生机气息 客厅装修的隐喻、符号和文化、历史等装饰设计通俗,采用混合、叠加等手段,营造了空间复杂的氛围,使得其设计师多元化的融合,并具有通俗化特征,然后将人带入轻松愉快的生活。 客厅空间采用现代优雅的设计格调,以当代设计美学呈现。在理性与时髦兼具的风格下,跳脱出艺术般的大胆前卫。
卧室
地面渐变色度的地毯,在丰富空间的同时,不破坏空间的整体性;在强调现代感与艺术感的同时,也更多的保留舒适感。在塑造包围感的同时,更是承载着一种多元文化的创意、
餐厅
开阔通透,实木餐桌椅简约舒适,搭配精致吊灯、丰富的书籍、饰品营造温馨格调、精神文化追求餐厅墙面艺术装置,铺设出曲动飞扬的神采风韵,以一种低调的静默,达至分明的艺术性指向。
