泰禾红树林300m²新中式风格
2020-06-23 11:48:43 查看人数 729
案例面积:300㎡
案例户型:别墅室
装修造价:约84万
案例风格:新中式
本案设计在简单的硬装基础上结合传统元素,一是中国传统风格文化意义在当前时代背景下的演绎;二是对中国当代文化充分理解基础上的当代设计。新中式风格不是纯粹的传统元素堆砌,而是通过对传统文化的认识,将现代元素和传统元素结合在一起。
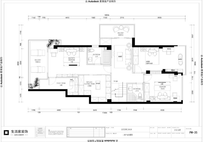
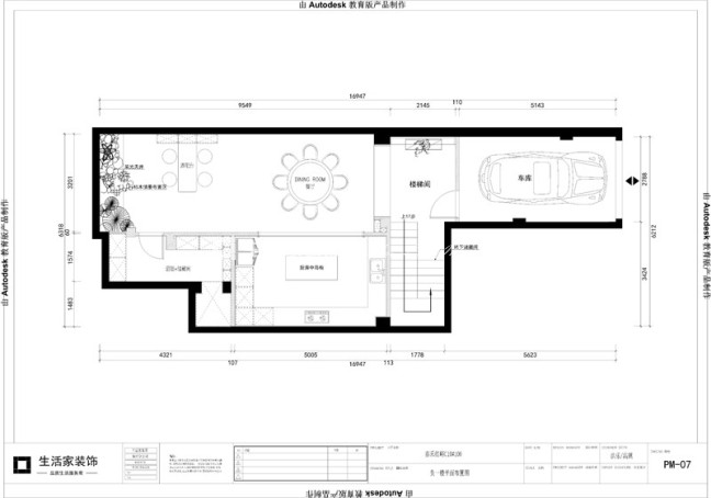
户型图
此户型方位正中,设计师为客户打造了融合的主题风格,全屋采用大面积的大理石,去玄关化概念设计,摈弃不必要的仪式空间。进门即为餐厅,将客餐厅融为一体,不仅使空间利用率更高,尺度感也更加强烈。
客厅
光线温暖充分,运用大量的国风家具,装饰画及黑,红为主的装饰色彩。采用尽量对称的布局,来体现出传统中式的韵味。 客厅空间采用现代优雅的设计格调,以当代设计美学呈现。在理性与时髦兼具的风格下,跳脱出艺术般的大胆前卫。客厅总体布局对称均衡,端正稳健,而在装饰细节上崇尚自然情趣,花鸟、鱼虫等精雕细琢,富于变化,充分体现出中国传统美学精神。
卧室
新中式风格不是纯粹的传统元素堆砌,而是通过对传统文化的认识,将现代元素和传统元素结合在一起,以现代人的审美需求来打造富有传统韵味的事物,让传统艺术在当今社会得到合适的体现。充分体现出现代与近代的融合,以现代融合进民国风。
餐厅
开阔通透,实木餐桌椅简约舒适,搭配精致吊灯、丰富的书籍、饰品营造温馨格调、精神文化追求 餐厅墙面艺术装置,铺设出曲动飞扬的神采风韵,以一种低调的静默,达至分明的艺术性指向。 将餐厨整并得更为一致,地面铺排浅棕防水木质地坪,形塑一股沉稳韵味,为了符合屋主便于大展厨艺需求,植入配有水槽的木纹拼砖中岛,双流理台维持流畅动线而不显紧迫,并配置中式餐桌,细节上凸显国风韵味。
