中庚香开长龙160m² 现代简约风格
2020-06-23 13:30:30 查看人数 768
案例面积:160㎡
案例户型:三居室
装修造价:约33万
案例风格:现代
时间带走了岁月,却带不走一颗保持年轻的心。本案的业主是一对临近退休的夫妻,把房子用作养老用的。虽然年纪不小,但是仍旧有着大胆的审美和不老的心态。不同的是,在经历了更多历练与生活之后,也拥有了比常人更多的智慧。去繁从简,尽量还原空间最初的形态,现代简约的风格,一切都那么的简单质
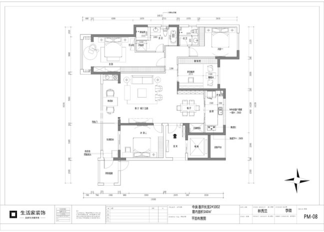
户型图
该户型与常规户型不同的是拥有长条型的阳台,要如何合理的运用这部分的空间是值得思考的,且在主卧里还有一个小阳台。那么该如何定义这些阳台空间就全靠设计师的理念来重新定义空
客厅
把原始户型中的阳台也并入客厅空间,却又不让整个长型阳台被截断,创造出更多的互动又流通的空间氛围。通过改造客厅来扩大客厅的视觉感,客厅空间进行的延伸让空间更加的简洁整齐。
卧室
整面的木饰面搭配上金属线条依旧镜面的材质,而床尾方向是一整面的衣柜,到顶的衣柜与无主灯的白色吊顶,卧室里的色彩从深到浅,从点到线再成面,构成了这个主卧空间。且考虑到业主夫妻俩的年纪,这样的配色能让整体的空间色彩氛围显得沉稳、舒适,更好的让人放松,休息。
餐厅
餐厅部分设计了整面的内嵌式储物柜,以及把不规则的小角落也很利落的做成了大储物柜,既增加了空间的整体性,全屋的门洞都做了加高处理,与定制的通顶柜门遥相呼应,更好的提升空间的视觉高度。而厨房的门则选用窄框透明玻璃门,让空间更为通透。在柔和的灯光下散发优雅的气息,让人在烟火气十足的美食里,品味生活滋味。
