直击高级色 | 傲娇装修风格上线啦!
2018-05-26 17:15:42 来源:京东生活家 查看人数:1519
今天给大家介绍的是《金地长湖湾》王先生家的实景案例,下面我们通过对王先生的采访深入了解一下这次的装修情缘。
A:王先生,请问您是在怎样的情况下接触生活家的呢?
Q:是这样的,在生活家之前,我其实已经选定了一家装修公司。但是由于预算严重超支,增项太多,最终退单。我自己经营公司,总觉得大公司靠谱,于是在网上搜查装修公司,生活家排名比较靠前,所以就这样接触到了生活家!

A:王先生在您接触了生活家以后,又是什么让您最终选择了生活家呢?
Q:说实在的,我对品质的要求很高,尤其是装修,这直接关系到我以后的生活。我先去了他们西康路27号的万平大店,上下三层,非常气派。数十个样板间,什么都有。装饰的很有调性,冲着这些我心里是满分的。随后他们带我看了所有的材料,说实话,我觉得很好,可以毫不夸张的说,他们的材料是我在看的所有的装修公司中时最好的。同时设计师的设计理念,也让我非常满意。所以最终就选择了生活家。

A:既然王先生说设计师设计理念,您非常满意,那您可以简单的说一下您的设计诉求是怎样的?
Q:是这样的,我不喜欢欧式的奢华与繁冗,喜欢以简单的方式来诠释生活态度,但是又不能失了装修品味。于是生活家设计师周铁君老师就给我打造了一种冷色调的低奢风格,简单的线条,高冷的色调,凸显出沉稳大气!
通过王先生的描述,我们接下来看看这套高冷系的低奢样板间的全貌!
项目简介
项目名称:金地长湖湾
户型面积:建筑245平米,套内235平米



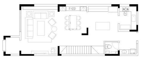
根据生活习惯将区间有效分割,功能明确;动线和静线有机结合,互不干扰。一层整个空间几乎全部互通,增加空间感,提高空间的整齐性以及使用面积的利用率。另外大面积空间的的设计便于整体规划和色彩呼应,让空间设计感更强。
横向空间共享的客厅▼

客厅采用横向空间共享的设计手法,用镜子巧妙的避开了拆不掉的承重墙,背景墙用老船木的拼花与书柜博古架的沙发墙在色彩上形成呼应,在形状上形成对比,同时黑色挂画的选择与空间主色调形成对比,使得整个空间饱满而不单调。
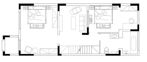
色彩层次感突出的主卧▼

主卧主色调依然是白色的,但是为了突出色彩的层次感,在床品的采用以及窗帘处都采用蓝色,让整个卧室在空间上形成呼应,顶部铁艺的水晶吊灯,弥补了中部空间的空白。
文艺范十足的次卧▼

这间卧室在设计上比较文艺,融入和北欧风格的设计元素,充满文艺色彩,但是为了使空间在零星中突出整体感,采用简单的吊灯,让空间在整体中繁简呼应,协调统一。
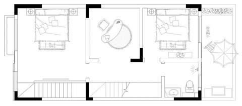
罗马假日般的次卧▼

三楼卧室有个户型的落地窗,加入了新古典的设计元素,并与床头挂画相得益彰,从形式和色彩上营造出一种经过现代手法处理的“罗马假日”。
错落有致的衣帽间▼

这间衣帽间将挂衣区与收纳区错落分开,恰好形成设计上的层次感,深啡色的木质选择,简单干练,一如王先生喜欢的轻奢理念。
偷得半日闲的茶室▼

这间茶室,利用了一部分露台的面积,这一点也是考虑到北方沙尘天气的缘故,封闭了一些露台面积,从而通过简化的设计手法,突出了室外景观,意在“宁静而致远”
放飞自我的卫生间▼

打通了一个卫生间,让原本不大的卫生间,变得丰富多彩,加强了卫浴体验和放松的心情。黑白灰的运用,让俗套远离了放飞心情的卫浴时间。
以上是王先生与生活家的一段装修情缘
这段情缘的另一个重要因素
就是
下面为大家详细介绍的本案设计师
生活家首席设计师周铁君
从业十一年
完成1000多套案例
几乎涉猎所有装修风格
平均每月完成10套装修案例
成单率高达80%

生活家首席设计师:周铁君
工作年限:11年
设计擅长风格
东南亚:泰式,港式,新亚洲
伊斯兰:土耳其,西俄,北埃及,波斯
中 式:明清,秦汉,唐宋,新中式
美 式:乔治亚,70,,80,新美式
自然风格:法式田园,美式田园,韩式田园,隐士田园
现代时尚:极简主义,功能主义,时尚前卫,温馨简装
设计经典案例
经典住宅案例:玛歌庄园、万科城南岛、雍华府
时尚办公案例:搜狐办公室、
个性商用案例:鼎魁轩时尚火锅、鸿起顺饭店南楼店
元
元


