济南三室两厅一厨一卫装修实景案例
2020-06-05 09:54:08 查看人数 1460
案例面积:142㎡
案例户型:三居室
装修造价:约23万
案例风格:新中式
户型是三室两厅一厨一卫的空间布局,在结构布局上通过合理的动线、结构及比例勾勒简洁实用的美学,交付给屋主一个可以容纳自己心灵的独特空间,才是我们的使命。加以深沉木色和金属作为空间的节奏。低纯度的色彩点缀其间,利用比例上的控制,来弱化视觉上的不对称感。入户玄关运用小型储物柜,一步一景一动一静搭配非常适宜,也可以把整个房子的空间感和层次感体现的恰当好,展现出房主端庄,优雅,富有浓厚的书香气息。客厅在主色调、格局、细节方面,微微几笔勾勒出“只缘身在此山中”中式韵味。在中式与现代元素的博弈中,恰当取舍,细节与整体遥相呼应,让整个空间似乎流动起来,此时的我仿佛拿着一把蒲扇摇摇晃晃,清风徐徐,中国元素淋漓尽致。卧室也遵循客餐厅的设计色调,运用有节制、有温度的细节元素着笔,丝绸的柔软质地与木质感的温润,融汇东西不刻意的美感,凝练之处尽显时尚的优雅。
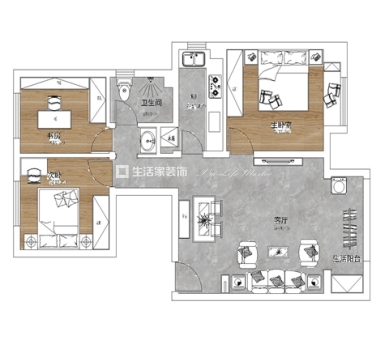
户型图
原始户型图
客厅
电视墙:采用联、通、透的设计手法,运用框景、借景、添景灯造景方式营造出空间的意境和禅味,把自然和中式文化糅合在一起。挂画的搭配体现了主人追求一种修身养性的生活境界。中式的设计,内敛含蓄却不乏设计,巧妙的心思大多用在生活的细节之处。从质朴的摆件中勾勒出记忆里的风雅画面,找回平衡和文化根源的亲切记忆。在此约三两知己,听风、吟茶,聊近来趣事,一壶古树普洱,便将世味皆煮成茶。时光之里,山南水北,人生不妨停留片刻。 沙发:造型以简单的直线条搭配上玫瑰金线条表现东方风格的古朴大方及轻奢东方美,饰以山水画为装饰元素,搭配简约利落的家具,使中式风格与现代风格相互糅合,呈现出富有禅意而不落俗套的雅致空间,在强调主人文化品位及自身修养的同时。以明黄的东方审美符号为主,采用柔和的色调,给人优雅温馨、自然脱俗的感觉,将传统风韵与现代舒适感完美的融合在一起,更加实用,力求给观者带来内心的渲染。设计采用山水元素以及水墨趣味,精致的物件和茶歇带来时空的宁静与恬静,空间内外的人如同时空交互出入古今。
卧室
以软包为背景,让空间营造出高雅宁静的人文意境。雅致、舒适、自然,身在城市,心归山水之间,身在当代,亦能体会悠悠古韵之美。整个空间流畅而舒适,虚实结合的山水元素巧妙的贯彻整个空间,同时也赋予空间自然的气息。没有繁琐的装饰,也不用过多的言语修饰,只表达内心深处追求的宁静。
餐厅
设计师以新中式开展设计,让东方元素洗去时光的束缚,用简明扼要的设计符号表达传统文化的内涵,通过传统意象与现代材质的对话碰撞营造出雅致惬意的空间氛围。似梦似幻的山水挥洒,在这里虚与实形成对照,浮华中通着静美,让人仿佛置身于山水间,享受愉乐的用餐氛围。
次卧
以软包为背景,搭配玫瑰金色不锈钢条,让空间营造出高雅宁静的人文意境。雅致、舒适、自然,身在城市,心归山水之间,身在当代,亦能体会悠悠古韵之美。整个空间流畅而舒适,虚实结合的山水元素巧妙的贯彻整个空间,同时也赋予空间自然的气息。没有繁琐的装饰,也不用过多的言语修饰,只表达内心深处追求的宁静。
卫生间
提取“暖”与“冷”色调作为主色调,用当代设计表达方式,将中式元素融入其中,使其成为一个具有“复古风味,现代美感”的传承中华文化的“灵魂”空间。当光线跃过空间之时,整个空间呈现出一片宁静与安详
