实拍丨海韵花园120平三室现代装修实景案例
2019-11-21 11:13:56 查看人数 1777
案例面积:120㎡
案例户型:三居室
装修造价:约18.2万
案例风格:现代
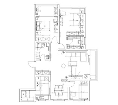
原始结构套三户型,户型卫生间较小 餐厅不规整,根据要求进行重新设计本案业主是一对年轻夫妇,对家的品质感需求高,视觉感舒适温馨为主,喜欢现代家具及自由的生活方式。客户针对这一要求,我对房屋的结构进行了优化设计改变了原有的格局增大了阳光的进光量。是每个屋子采光充分家里布满阳光。
户型图
户型图
客厅
电视墙运用石膏线条的简洁设计,塑造形式感,沙发墙的元素运用和电视墙相同,以暖色为主体现温馨感受,吊顶的造型以简洁的线条为主,灯饰的选择贴合现代元素。实木和布艺结合的沙发配上实木茶几电视柜,简约时尚大气。
卧室
卧室运用了浅色系以及原木进行装饰,对于整体颜色做到了简化,家具也是选择简洁的造型,更加在质感上下功夫,摆放绿植增加生机,视觉上非常舒服。卧室简洁时尚、去繁就简,没有繁杂的家具配饰,注重生活品味。
餐厅
餐厅设计,配上挂件饰品顶上做餐厅吊灯, 餐厅选择实木质感家具,全现代家具的设计体现着高品质的家居生活,清晰的木制纹理,自由的线条给带来舒适的美感。
次卧
卧室主要简单温馨为主,卧室灯光以暖色为主增加温馨感受,地面采用地板增加卧室的舒适感。衣柜采用通顶设计增加储物。卧室的灯饰造型雅致个性,床的搭配以舒适为主,床垫尤为重要关系到人的睡眠质量。
卫生间
卫生间没有窗户,为了解决通风问题,设计了通风孔和换气扇,色调以暖色为主体现温馨舒适的感觉,淋浴区做了淋浴隔断,这样在洗澡的同时不会让水把卫生间其他地方淋湿。马桶为客户选择了智能马桶,在享受的同时也提高了生活品质,也更加健康舒适。
