实拍丨泰州路小区87平三室现代装修实景案例
2019-09-24 14:47:46 查看人数 2107
案例面积:87㎡
案例户型:三居室
装修造价:约16.7万
案例风格:现代
套三厅旧房改造,提高生活品质,一家三口居住,孩子在上学只是假期回来居住。因为不需要三个卧室希望能改造出一个独立的餐厅空间。入户没有鞋帽柜,卫生间偏小希望改大,还要改造出一个室内阳台,使业主的生活品质达到一个更高的要求设计源于生活,实用为先,美观为次;我认为设计最大的乐趣来源于它的不确定性:想象能够得到的东西,我们现在所主导的生活和轨迹,包括审美,就是要多一些不确定性,多一些断层:生活一定是向上的,优质的。
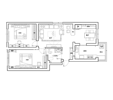
户型图
原始户型图
客厅
带有时光记忆的浅灰色其绒布沙发是客厅的主角,不仅中和黑白灰的单一,浅咖色吧凳的在整个空间内更增添了一抹温馨的暖意,色彩的分散、软装的配饰,在整个客厅空间和谐展现,维持了视觉的平衡状态。
卧室
主卧的灰色硬包有一种稳重、大气的视觉感,深灰色条形床单及深灰色被套的充满艺术气息的双人床,因深浅灰色的叠加,更体现出各种元素的融合之美,仿佛一位儒雅睿智的绅士,素雅灰色调的家居氛围因它的装点而升华。
餐厅
餐厅空间设计上,原始空间是没有餐厅与客厅共用的,这是在客卧的基础上经过设计改造出的独立餐厅,在储藏功能上增加的酒柜,把储藏和装饰相结合在一起做了酒柜。
次卧
次卧是给孩子做休息及学习多功能的空间,深灰色及浅灰色的饰面搭配而做的衣柜、书桌、书柜,完全体现出全屋的设计格调及风格的诠释,让孩子在这种静谧感的环境下学习,思绪会更轻松而又安静。
卫生间
卫生间因为面积太小布局非常拥挤使用不便,通过把墙体拆除半墙以及改造扩大借用主卧空间,坐便通过移位器规划到合理位置,这样就把原始卫生间狭小而不合理功能布局,改造成合理性及舒适性在生活品质上得到一个极大的提成。
