山海春风 165㎡ 意法混搭
2026-01-09 11:53:01 查看人数 8739
案例面积:165㎡
案例户型:三居室
装修造价:约39万
案例风格:混搭
大面积胡桃木墙板的运用,是构建意式轻奢低调质感的关键。胡桃木独特的纹理与温润的色泽,为空间增添了一份沉稳与内敛。
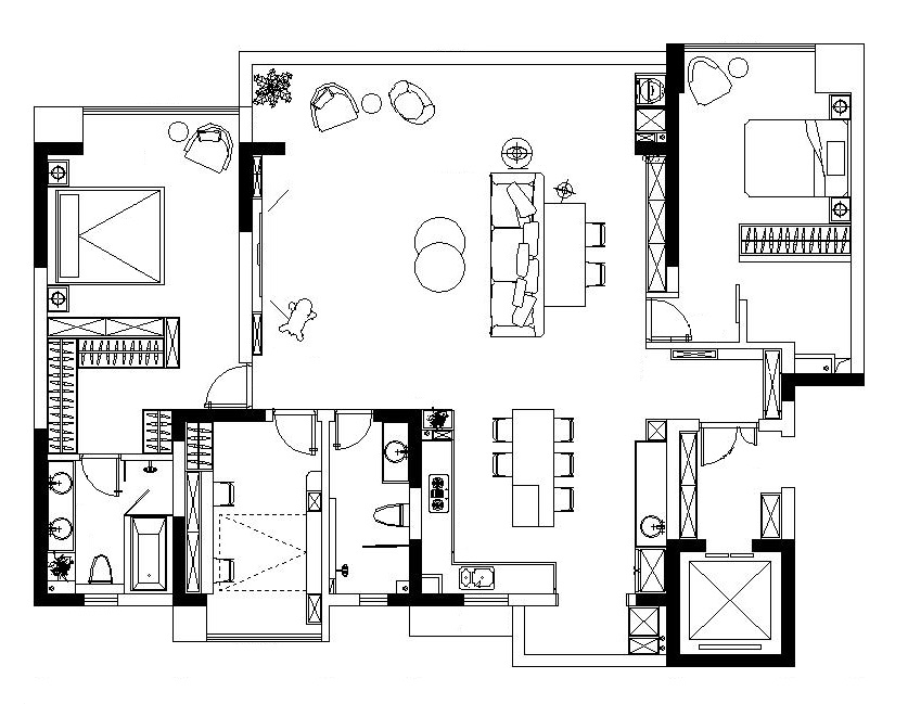
户型图
原始户型分析 1.南北通透,明厨明卫,采光透气都很好。 2.入户有独立玄关,隐私性很好。 3.原始餐厅厨房面积较小。
改造方案 1.餐厨一体,提高空间尺度,增加餐厨面积。 2.客厅及阳台打通,进一步扩大横厅尺寸,增加居住舒适度。
玄关
玄关的储物柜以悬空设计为主,打破了传统柜体的厚重感,营造出一种轻盈、灵动的视觉效果,仿佛整个空间都随之“悬浮”起来,为家居增添了一份独特的艺术气息。
胡桃木的栅格板是整个设计的点睛之笔,其天然的纹理和温暖的色调,为空间注入了一丝自然与温馨。与之搭配的同色系木饰面板,进一步强化了整体风格的统一性,使整个玄关区域在视觉上更加和谐、流畅。
悬空储物台的设计则兼顾了实用性与美观性,为日常物品的放置提供了便利,如钥匙、包包等小物件可以随手搁置,进一步凸显了空间的轻盈感。
中间点缀的大尺寸灰咖色系石材面板,以其独特的质感和沉稳的色调,为整个玄关增添了一份高雅与大气。石材的冰冷质感与木材的温暖形成鲜明对比,丰富了空间的层次感。
客厅
客厅,作为家庭生活的核心区域,以意式轻奢为设计主调,通过巧妙的空间规划与材质搭配,打造出一个既具低调质感又不失温馨舒适的理想空间。地面采用浅灰的哑光地砖通铺,为空间奠定了清爽的基调。
暖白色吊顶搭配无主灯设计,摒弃了传统主灯的繁杂,以均匀分布的灯光营造出柔和、均匀的光线环境,进一步强化了空间的清爽感。大面积胡桃木墙板的运用,是构建意式轻奢低调质感的关键。
电视背景墙延续了这一设计语言,采用与玄关同款的胡桃木墙板,与深灰悬空储物柜巧妙结合。内嵌电视的设计不仅使视觉上更加整洁,无卫生死角。
将卧室门设计为“隐形门”,与电视背景墙自然延伸,视觉上更加协调统一,展现出简洁而大气的美感。
客厅的家具布置同样独具匠心,燕麦色双面沙发置于灰色调大尺寸短绒地毯上,柔软的触感与温暖的色调相得益彰。
搭配一块牛奶绒焦糖色毯子,瞬间提升了舒适感与温馨氛围。圆形边几方便置物与点缀,后方黑色钓鱼灯轻盈灵动,为空间增添了一份艺术气息。
双面可坐的沙发采用模块化设计,布局自由度高,可随意拼接成L形、一字形或拆开做单人沙发,无论是日常休闲还是朋友聚会,都能轻松应对。
其他
原始客厅面积较大,巧妙地将沙发背后的空间打造成开放式书房。原木大板书桌搭配流线型桌脚,尽显优雅与时尚。黑色皮质办公椅不仅舒适,更提升了整体的品质感。
后方一整面储物柜将次卧入口隐藏其中,胡桃木置物台面搭配深灰色储物区,上方线性吊灯点亮书桌,营造出精致温润的工作学习环境。
厨房
在空间规划中原始厨房面积较小,所以依照墙体走向打造出开放式厨房,厨房采用L形走向的橱柜设计,充分利用了墙体的转角空间,使操作流程更加流畅。
在转角且靠窗的位置设置洗菜池,充足的自然光线透过窗户照亮备菜区,高低台的设计充分考虑了人体工程学原理,符合人们日常操作习惯,无论是洗菜、切菜还是烹饪,都能更加轻松自如,大大提升了厨房使用的舒适度。
橱柜的配色下方地柜选用灰色储物柜,具有强大的收纳功能,能够将各类厨房用品有序收纳其中,吊柜则采用胡桃木色系,这一色调与其他空间的储物柜配色保持一致,营造出整体家居风格的统一性与协调性。
在操作区,搭配灰色系墙砖打造去背板设计,灰色墙砖与地柜的灰色相呼应,进一步强化了空间的整体感。将电器巧妙嵌入橱柜之中,不仅使厨房外观更加清爽整洁,还避免了电器外露可能带来的卫生死角问。
餐厅
开放式客餐厨设计,不仅让整个空间的空气与光线更加自由流通,还极大地提升了居住者的生活体验与情感交流。
深灰色系岛台式石材餐桌作为整个就餐区的核心元素,其冷峻的质感与坚固的结构为用餐时光提供了稳定的支撑。搭配铁艺皮质编织餐椅,冷峻的石材与柔和的皮质形成鲜明对比,碰撞出恰到好处的视觉效果。
上方悬挂的一组线性吊灯,以微黄的灯光照亮整个就餐区域,营造出温馨而富有层次感的用餐氛围,让每一次家庭聚餐都充满仪式感。
餐边柜的设计与厨房橱柜采用同款配色,深灰色的外观与整体风格保持高度一致。靠阳台一侧内嵌冰箱,既节省了空间又保持了整体的整洁美观。
阳台
地砖通铺至阳台,将阳台空间纳入客厅使用,极大地增加了空间的开阔感。
超大的落地窗前,编织懒人躺椅、羊绒质感脚凳与胡桃木边几相得益彰,打造出一个悠然自得的休闲角落,让人可以尽情享受阳光与美景。
阳台垭口向外延伸,设计同色系胡桃木家政柜,将洗衣机烘干机内嵌其中,下方镂空设计方便扫地机器人工作,既实用又美观。
卧室
卧室在整体设计中,与客餐厅的意式风格不同,休息区选用了柔和的法式中古风,以细腻笔触勾勒出优雅与温润的居住画卷。
一开门,柔和的胡桃木色系地板率先映入眼帘,其自然的纹理与温润的质感,仿佛诉说着岁月的故事。
与之相呼应的胡桃木衣柜、床以及床头柜,以统一的木质元素,构建起一个充满温润气息的睡眠空间。每一件家具都经过精心挑选,线条流畅,造型简约而不失典雅,彰显出法式中古风的独特韵味。
暖白色系的墙面宛如纯净的画布,为整个空间奠定了柔和的基调。而石膏线条的雕花点缀,则如同细腻的笔触,在这画布上勾勒出精致的图案,增添了一份复古的优雅。
暖白色系的墙面宛如纯净的画布,为整个空间奠定了柔和的基调。而石膏线条的雕花点缀,则如同细腻的笔触,在这画布上勾勒出精致的图案,增添了一份复古的优雅。
搭配上复古质感拉满的蕾丝印花床品和黑白印花窗帘,整个休息区仿佛被时光凝固,充满了优雅与浪漫的气息。一盏花瓣造型的吊灯,宛如一朵盛开的花朵,悬挂在休息区的中央,为空间增添了一份灵动与柔美。
主卧入口与主卫之间的空间被巧妙利用,设计成L形双面到顶衣柜。这一设计不仅打造出了一个实用的衣帽间,满足了日常衣物的收纳需求,还有效避免了卫生间正对休息区的尴尬,提升了空间的私密性与舒适度。
卫生间
走进主卫,灰色系的墙地砖为整个空间奠定了清爽的基调,简洁而大气。墙排的浴室柜和马桶,以其现代感十足的设计,展现出简洁与实用的完美结合。
淋浴房和浴缸的配备,满足了不同的洗浴需求,让疲惫的身躯能够得到充分的放松。在脚落地处放上心爱的绿植,为卫生间增添了一抹生机与活力,让每一次的洗浴都仿佛置身于自然之中。
而卫生间的淋浴花洒、水龙头以及抽屉把手,都采用黄铜材质,其独特的金属光泽与复古韵味,渗透进每一个细节之中,与休息区的风格相呼应,营造出一种和谐统一的美感。
公共卫生间与主卫在设计上保持高度一致,延续了灰色系墙地砖的清爽风格。干湿分离的设计理念,不仅提高了空间的利用率,更有效避免了水汽的扩散,保持了卫生间的干燥与整洁。
次卧
次卧以意式风格为核心,大面积运用胡桃木元素,从墙面装饰到家具陈设,皆以胡桃木的温润质感为基调。这种天然的木质纹理,不仅为空间增添了自然的气息,更在沉稳中透露出一丝优雅与大气。
再用一扇谷仓门将次卧一侧的储物空间“隐藏”起来,让空间利用的更加合理。
灰色系的皮质双人床,以其简约流畅的线条和柔软舒适的触感,成为休息空间的视觉中心。搭配同色系的窗帘,在光影的交织下,营造出静谧而舒适的睡眠氛围。
书房
小次卧则被巧妙地改造成书房,实现了空间功能的多元化转变。转角处设计的深灰色顶储物柜,充分利用了垂直空间,提供了充足的收纳功能。延伸出的悬空胡桃木双人位茶桌,作为阅读、工作的区域。
靠窗放置的灯芯绒懒人沙发,柔软舒适,为阅读或小憩提供了一个绝佳的角落。而色块明亮的地毯,则为整个书房增添了一抹活泼与灵动,丰富了空间的层次感,让书房不再单调乏味。
