永翌上尚城85m² 现代风格
2020-06-30 15:31:47 查看人数 1339
案例面积:85㎡
案例户型:三居室
装修造价:约16.8万
案例风格:现代
现代简约风格设计是以简约为主的装修风格,简约并不是缺乏设计要素,而是一种更高层次的创作境界。全屋由简约造型构成,简约的线条有的柔美雅致,有的道劲而富于节奏感,整个立体形式都与有条不紊的、有节奏的曲线融为一体,是设计别有一番风味,形成全屋良好的效果,深受现代人的喜爱。
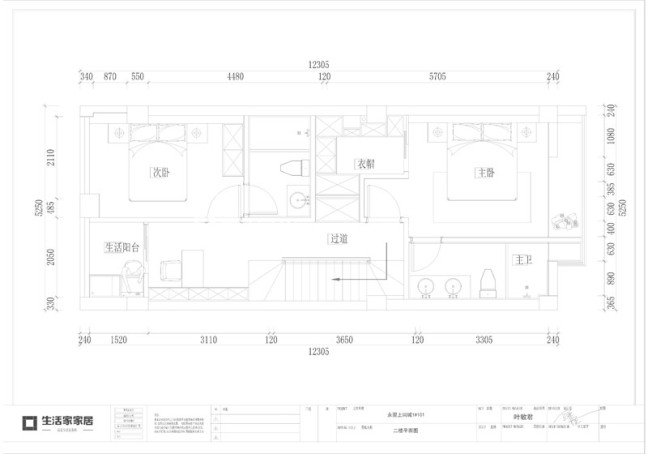
户型图
户型较为方正,整体空间感好,没有出现斜角或者缺角空间。每个空间采光和通风都好。餐厅和厨房还带有阳台设计,采光,观景,生活更方便。南北通透而且可以看到两边的风景,视野比较广阔。整体的空间塑造感强。
客厅
首先,简约不是简单,它是经过深思熟虑后经过创新得出的设计和思路的延展,不是简单的"堆砌"和平淡的"摆放",它凝结着设计师的独具匠心,既美观又实用。如客厅中的沙发,虽然没有了欧式的华丽与繁琐,但是它的简单大方依然很美丽,并且这样的沙发可以坐更多的人,满足了家里客人多的需求。大理石的背景墙与后面简约造型衔接到了一起,使得有一股淡雅清新的独特韵味,客厅上方的吊顶和吊灯也比较时尚简约,显得整个空间更加的有格调。
餐厅
在餐桌配置上,黑白系列家具,独特的光泽使家具倍感时尚,具有舒适与美观并存的享受。在连接餐厅和客厅的展示柜上,延续了黑白灰的主色调,以简洁的造型、完美的细节,营造出时尚前卫的感觉,再配上浅灰调的大理石地板,给人一种别有的感觉风格。
