中建华府87m² 新中式风格
2020-06-23 10:59:35 查看人数 798
案例面积:87㎡
案例户型:三居室
装修造价:约20万
案例风格:新中式
对于居所,每个人都有着自己独到的喜好和见解!本案设计在简单的硬装基础上,以低调轻奢的风骨,浪漫神秘的情怀,舒适融合的气质,在看似简洁朴素的外表之下却常常折射出一种隐藏的贵族气质所以又给人时尚前卫、气质优雅且不失温馨舒适的感觉。
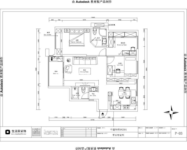
户型图
此户型方位正中,设计师为客户打造了贵族家园的主题风格,全屋采用大理石搭配金色装饰线条,,去玄关化概念设计,摈弃不必要的仪式空间。将餐厅和厨房一体化采用开放式的做法,不仅使空间利用率更高,尺度感也更加强烈。
客厅
光线温暖充分,金属吊灯及充满质感的浅色布质沙发结合绿色单椅凸显灵动自由空间,再以黑色配饰点缀,处处生机气息 客厅空间采用现代优雅的设计格调,以当代设计美学呈现。在理性与时髦兼具的风格下,跳脱出艺术般的大胆前卫。
卧室
主卧是彰显主人品味的空间,延续客厅的风格特点,以浅咖色作为主色调,以灰蓝色及金黄色点缀。在满足奢华感的同时,又在在没有任何束缚和压力的环境中打造一片能够让身体完全放松又感到无比舒适的温馨环境 品质上乘的床品与软饰,突出了主人对于休憩空间的舒适度的追求。
餐厅
开阔通透,白色大理石材质餐桌搭配金色金属支撑脚,搭配精致餐具、饰品营造温馨格调、书籍体现精神文化追求。 餐厅墙面艺术装置,铺设出曲动飞扬的神采风韵,以一种低调的静默,达至分明的艺术性指向。
