禹州金辉里105m²复式 现代简约风格
2020-06-23 10:10:57 查看人数 1695
案例面积:105㎡
案例户型:其他室
装修造价:约20万
案例风格:现代
配暖咖色的石材纹理和阶梯灯光的交织在这个空间有着向上和连接的作用仿佛告诉我们“停留下来”这里的风景值得思考走上去你便发现不一样的天空探索与好奇是我们生活的本源,生活有了光便有了希望及温暖
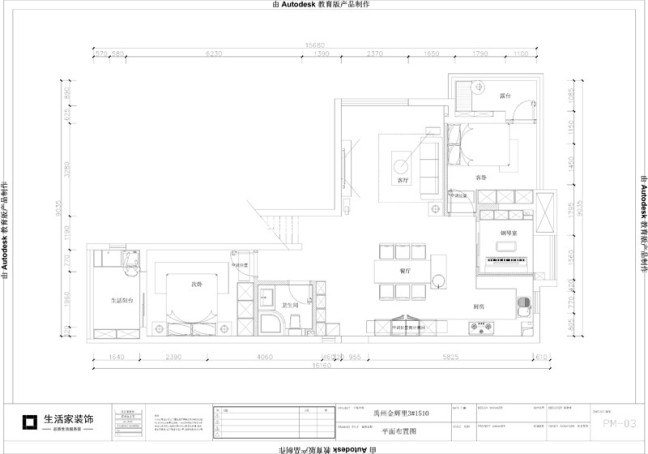
户型图
在本案设计中,回归“家”的本质处理人与人的关系共生又独立、聚集又分散我们要在“家”学会慢煮生活感受生活被那些细碎的温暖所笼罩。修建一所建筑中的“建筑”赋予室内空间“有机”空间透过“空间”看空间,穿过空间延续空间的秩序感在不同的角度想象和品味住宅的另一种可能性
客厅
整个客、餐厅“留白”的写意空间干净的空间肌底像生活本身一样,不需要繁杂墙面的暖木色便是诉说着生活本有的温情与安心
餐厅
个温情的家需要一个空间承载生活点点滴滴的小事儿重视和品味来源于生活中,茶歇饭足,食之所悦,望望小院的景色久倦了城市的尘嚣,归家拥抱“暖春”,最温情的在于家所带来的归属感
